行業新聞 2024.01.24
0 引 言
黨的十八大以來,為貫徹共享發展理念,踐行“以人民為中心”的發展思想,讓每個孩子、每個公民都享有公平而有質量的教育 [1],國家將融合教育作為教育高質量發展的重要內容,進行了全方位的持續推進。其中,高校作為知識生產、傳播、分享的最重要基地,應為所有人都提供平等、共享的受教育機會,這就需要塑造一個歡迎所有人的校園,無障礙環境建設因而成為達成這一目標的基礎條件。特別是隨著 2023 年 9 月 1 日《中華人民共和國無障礙環境建設法》的正式實施,校園的無障礙環境建設將更多得到各級教育管理部門和辦學機構的重視。
與此同時,“雙一流”建設背景下的高校學科建設正呈現國際化、整合性、開放性和多元化的趨勢 [2],以校園無障礙環境建設為核心的“包容性校園”,與綠色校園、智慧校園、韌性校園等國際性議題一樣,已成為當今世界高校都在關注并努力實現的共同目標,因此也必將是與“雙一流”學科建設方向相一致的校園物質空間環境發展方向。
一個具有更高包容性的校園不僅意味著校園在面對全齡、全時、全域的使用需求時,可以提供安全、健康、便捷的友好環境,更應由此體現并傳達多樣教學、靈活學習、高效反饋、反思實踐的“包容性教育”原則。為此需要規劃師、建筑師在滿足無障礙設計相關設計規范與標準要求的基礎上,切實從使用者視角,在提高無障礙設施配置的系統性、設計建造的精細化、場景體驗的多元化、信息傳播的有效性等多方面,全面提升校園的無障礙表現。
1 包容性校園規劃的特殊性
1.1 服務對象
包容性校園的服務對象不再是少數殘障或運動損傷學生,而是擴展到全體在校師生及工作人員,以及來往于校園的專家學者、研究人員及普通市民,即面向全體社會成員,年齡覆蓋全齡(圖 1)。因此,校園環境在解決殘障群體需求的基礎上,在空間規劃和設施供給中,需要考慮校園內各類人群學習、工作、生活需求及不同的體能特征和認知能力,提供多種可供選擇的通行、使用、交互和服務的方式。

![]()
圖1 大學校園使用人群分析
1.2 需求特征
為滿足以上人群在校園出行、使用、交流、應急等方面的需求,校園需要:
(1)通過無障礙步行系統路徑規劃,保證場地與建筑、建筑組團之間、建筑內部的便捷聯系和移動暢通;
(2)通過無障礙設施配置規劃,保證功能空間和設施的使用便利;
(3)通過無障礙標識信息系統幫助人們有效獲取信息,更好地理解和使用各類型空間和設施,并通過需求響應、智慧化管理,滿足個性化的服務需求;
(4)無障礙應急和避險疏散系統應能使各類人群通過聲、光、觸覺等不同方式獲取報警信息并協助脫離險境。
同時,校園規劃應圍繞教學科研、生活、運動、休憩的不同場景進行功能布局,并為舉辦大型活動提供場地和條件。不同功能場景的無障礙需求具有差異化,比如,公共教室、實驗室、學術會堂等場所體現辦學理念和學科特點,應注重可達性和教學空間的靈活性和視聽信息獲取的便利性,充分體現教育公平。宿舍、食堂等為師生提供宜居生活,應合理配置無障礙宿舍及便利設施,滿足生活便捷的需求。圖書館、劇場、體育館、校醫院等建筑考慮與城市的開放共享,應適當提升無障礙配置標準,增加人性化設施。此外,應確保在校慶等重大活動中,障礙人群和普通人群具有同等參與的權利 [3]。
1.3 性能目標
現行《無障礙設計規范》(GB50763—2012)規定了教育類建筑的無障礙配置標準,《建筑與市政工程無障礙通用規范》(GB55019—2021),對無障礙設施的安全性、便利性和系統性提出具體要求。在此基礎上,校園無障礙規劃滿足場地、建筑、標識、安全的通用性需求和校園場景的差異化需求,形成完善的無障礙系統性規劃,并結合校園規劃理念和設計特色,細化設施配置,保障不同使用場景功能合理,打造通行自由、使用便捷、交流順暢的安全共享的校園環境,并以通用無障礙理念引領設計創新,提升校園環境的便利性和舒適度,營造全齡友好的包容性校園環境(圖 2)。

![]()
圖2 大學校園無障礙需求及性能目標
2 包容性校園規劃的系統性
2.1 規劃內容
包容性校園規劃基于通行設施、服務設施、信息交流設施三大系統,從場地、建筑、標識、應急 4 個層面,形成完整的無障礙體系(圖 3)。

![]()
圖3 大學校園無障礙系統性規劃
同時,校園建筑群根據不同使用場景進行無障礙設施配置和空間落位,確保無障礙流線通暢,無障礙設施數量充足、布局合理,安裝精準到位,同時考慮人性化設施及采光與照明、材料與表面、質感與色彩等通用設計內容(圖 4)。

圖4 大學校園無障礙設施配置規劃
2.2 交通路徑規劃
校園出行自由是對無障礙環境的基本要求 [3]。步行是校園內的主要交通方式。無障礙系統性規劃首先要結合市政道路的人行道系統、校園主要步行道路、建筑地塊步行道路、景觀步道等道路設施進行無障礙步行系統路徑規劃,形成連貫的無障礙通行路線。
以中國人民大學通州新校區為例,該校區總用地 110 公頃,總建筑面積約 105 萬 m2,總體規劃呈一核兩軸多中心的框架體系, 3 條城市次干路穿行校園,成為重要的交通共享帶和城市界面,校園局部道路采用立體交通聯系,外圍城市干道設有地鐵站點。
在新校區無障礙專項規劃中,無障礙步行系統規劃(圖 5)注重校園出入口與城市道路、公共交通站點的無障礙連通,對緣石坡道等接駁設施、智能導示設施、過街天橋與地下通道進行無障礙配置,考慮人行道與建筑組團場地的無障礙出入口、組團內部道路與建筑出入口的無障礙聯系路徑。所有人行道路均應滿足無障礙通行寬度要求,保證通行連續性和鋪地選材、鋪設方法的安全性,形成從城市道路—校園主要出入口—建筑組團場地出入口—各樓棟出入口的連貫的步行無障礙路徑。同時在城校共享的道路設施上注重道路一體化步行空間的安全性、連續性、可達性和人性化。對自行車專用道和自行車停放位置進行統一規劃,使之不影響無障礙通行寬度。景觀無障礙流線結合景觀動線,規劃無障礙游覽路線,并注重景觀的安全性、可達性和開放共享性,保證各類人群具有同等享受景觀的權力。車行路徑合理配置無障礙車位并妥善設置無障礙停車、候車、落客等區域。

![]()
圖5 中國人民大學通州新校區無障礙步行系統圖
2.3 設施配置規劃
在進行包容性校園的無障礙設施配置規劃時,應根據不同建筑功能、開放程度、人員復合性、使用強度等,分析相應的無障礙需求,進行合理的無障礙設施配置。
以北京科技大學雄安校區為例,在這個總建筑面積 136 萬 m2 的新校區中,為實現校城共享、分時段面向城市開放的目標,教學樓、食堂等建筑主要出入口均設置為無障礙出入口,樓棟內按功能分區設置無障礙電梯,每層結合公共衛生間設置無障礙衛生間,在教室、實驗室、報告廳等設置無障礙席位,宿舍樓按比例配置無障礙宿舍,并配置無障礙出入口和無障礙電梯。校園內每個公共停車場(庫)均分別設置無障礙機動車停車位。圖書館、劇場、體育館、校醫院等城校共享建筑,適當提升無障礙出入口、無障礙電梯、無障礙停車位的建設標準,并增設母嬰室等人性化設施(圖 6)。

![]()
圖6 北京科技大學雄安校區無障礙設施配置圖
3 包容性校園設計的精細化
3.1 強化設計引導
傳統校園無障礙表現普遍不佳的一個重要原因是精細化嚴重不足——無障礙設施配置注重解決有無問題,而忽略了設施配置的準確性,更遑論其舒適性和體驗感。因此,包容性校園設計需要從編制大學校園無障礙專項設計導則(圖 7)或任務書開始,針對不同高校規劃特點,明確無障礙性能目標,確定無障礙設計標準、技術要點和實施細則,并指出優化提升方向。設計單位應繪制出清晰、易懂的無障礙專項設計圖示——更多引入軸側圖等直觀表達方式,規范設施節點細部尺寸,確保建造者清晰了解設施的安裝要求,為后續施工的精準到位提供技術保障。

![]()
圖7 大學校園無障礙專項設計引導
以康復大學總建筑面積約 16 萬平方米的核心建筑組群“創新核”(圖 8)為例,包容性校園的精細化設計應重點關注如下部分。

圖8 “創新核”鳥瞰圖及無障礙設施配置
3.2 流線規劃
通過使用者視角的帶入,設計師在建筑內部嘗試構建連貫的無障礙流線(圖 9),連接各功能空間和無障礙設施,保證通行寬度和連續性,確保安全性和所有空間、設施可達易用。

圖9 “創新核”1#樓無障礙流線及設施配置圖
3.3 出入口
建筑無障礙出入口是校園無障礙路徑和建筑樓棟的重要銜接點 [4]。建筑組團之間通過無障礙緩坡地形連接(圖 10),保證通行順暢。

![]()
圖10 場地坡地形
“創新核”主要出入口均為無障礙出入口(圖 11),并結合場地環境,采用坡度小于 5%的平坡出入口,形成便捷通暢的室內外無障礙連通。出入口上方設置雨棚,外開門滿足單扇開啟時輪椅通行寬度要求,玻璃設置雙線提示帶,門斗滿足門扇開啟后的輪椅空間。

![]()
圖11 “創新核”無障礙出入口
3.4 電梯
“創新核“建筑群內部客梯共計 8 組 11 部 ,提高標準全部設置為無障礙電梯(圖 12),方便所有人使用,避免區別對待。電梯口采用八字口,轉角進行圓角設計,避免磕碰危險。候梯廳設置低位呼梯按鈕、提示盲道、運行顯示裝置等,并增設腳踏按鈕。轎廂內設置低位操作盤、盲文按鍵、三面扶手、鏡面材質、報層音響、聲光顯示裝置等。

![]()
圖12 “創新核”無障礙電梯
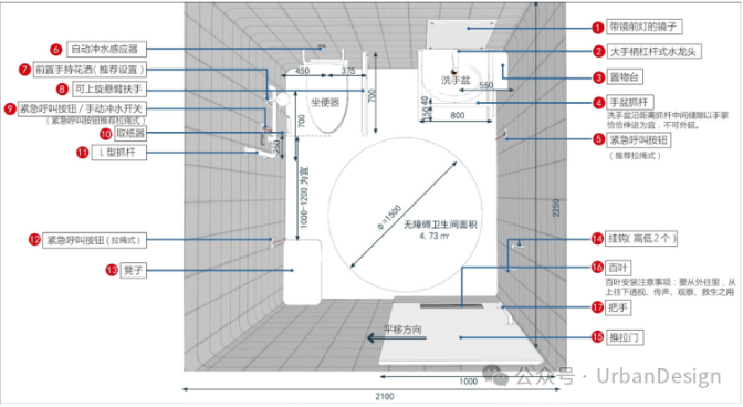
3.5 衛生間
衛生間是滿足有需要群體在校園內學習、工作、生活生理必需的重要設施。獨立的無障礙衛生間不僅供殘障者使用,同時可為病弱人士、習慣坐姿如廁的人、由異性陪護的老年人以及家長攜帶異性兒童提供使用便利,較之在男女公共衛生間內分別設置無障礙廁位的形式,更能體現服務全齡人群的靈活性。“創新核”每組公共衛生間均就近設置無障礙衛生間(圖13),每棟樓每層 2~4 處,門體采用自動感應側推門。

![]()
圖13 “創新核”無障礙衛生間
同時,衛生間還根據使用人群的多樣性,增設無障礙小便器、蹲便助力扶手等適老、適弱配置,方便全齡人群使用。
3.6 母嬰室
圖書館設置母嬰室,滿足哺乳期教職工和社會人士的使用需求。母嬰室面積約 15m2,配置相應的清潔設施、哺乳設施和兒童設施,并采用安心安全的圓角設計以及符合兒童心理特征的色彩和圖案。
3.7 其他
建筑地下停車場設置不少于總停車數 2%的無障礙車位,并設于靠近無障礙出入口、通行方便、行走路線最短且盡量不穿越車行道路的位置。電動汽車停車區也按比例設置帶充電樁的無障礙停車位。
建筑室內柱子全部圓角設計,設置低位服務臺和容膝空間,門廳設置無障礙休息區,并提供帶有助力扶手和靠背的休息座椅,設置輪椅停放(租借)區以及試聽輔助設備。
室內通過色彩變化進行功能分區,標識采用大字體和高對比度形式(圖 14)。

![]()
圖14 “創新核”室內標識導示系統示意
4 包容性校園體驗的多樣化
4.1 包容性教學場景
教學研空間是校園里使用強度最高的功能空間,為保證所有學生平等受教育的權利,教室布局和設施配置應充分考慮輪椅使用者、視障、聽障等人群的使用需求。
(1)公共教室、專業教室結合課程教學、操作演示、小組討論等不同授課形式,采用活動桌椅靈活組合的布局方式,便于設置輪椅席位,入口內側預留輪椅回轉空間,主要通道滿足輪椅通行寬度,可升降講桌方便老師和同學(圖 15)。實驗室設置無障礙實驗臺,并保證入口處的輪椅回轉空間和通道寬度。

![]()
圖15 中國人民大學通州新校區教室活動桌椅和可升降講臺
(2)階梯教室、報告廳結合第一排中部活動桌椅設置輪椅席位,既可在有需求時作為無障礙席位,也可供嘉賓或學生平時使用。桌子側板設計為弧線型,方便輪椅進出。講臺通過坡道解決無障礙登臺問題(圖 16)。

![]()
圖16 康復大學階梯教室輪椅席位和無障礙講臺
(3)視聽輔助:保證聽覺障礙者和視覺障礙者能夠同步接收信息,教室、閱覽室、報告廳等設計為隔音且無回音場所,對于聽力障礙者配備揚聲器實現教室各角落即時穩定穩態擴音性能,提供與個人助聽設備耦合的調頻信號、語音轉文字等設備;對于視覺障礙者采用大字顯示屏、語音提示、讀屏軟件等設施。
(4)圖書館室內空間滿足輪椅通行寬度和回轉空間,設置無障礙閱讀桌,配置放大鏡、老花鏡等輔助閱讀工具,采用明快的色彩和弧線造型的家具,墻角、柱子、書柜等采用圓角設計增加安全性(圖 17)。

![]()
圖17 康復大學無障礙圖書館
4.2 便捷化生活場景
宿舍樓按比例設置無障礙宿舍,室內空間和家具設施滿足輪椅人士使用(圖 18)。家具全部圓角設計,床設有容腳空間,床面、椅面高度方便輪椅挪乘,書桌采用弧形設計并設置容膝空間,椅子帶靠背和扶手方便助力起身,衣柜采用推拉門和可升降掛衣桿,窗戶開啟手柄低位設置,燈具設置雙控開關,所有電器均可以遙控并設置緊急呼叫按鈕,衛生間設置無障礙洗手盆、坐便器和無障礙淋浴設施。

![]()
圖18 中國人民大學通州新校區無障礙宿舍
4.3 健康化運動場景
運動場館須綜合考慮學生上課和鍛煉流線、賽時運動員和觀眾流線、市民健身流線等不同使用場景的無障礙需求,充分考慮輪椅人士進出和使用所需要的空間及設施。要考慮運動活動中的特殊需求以滿足殘障學生的生理隱私和體育鍛煉需求,如更衣室、淋浴房等空間的無障礙配置,看臺設置足夠數量的輪椅席位。
4.4 有障礙體驗場景
康復大學校園無障礙建設中,結合景觀環境,利用坡道柱廊下空間凈高 3.5~8.5m 區域及相鄰室外空間設置障礙體驗區,提供臺階障礙體驗、視覺障礙體驗與老年人障礙體驗等,活化功能空間并突出康復教學特色,成為頗具特色的戶外教學場所(圖 19)。

![]()
圖19 康復大學障礙體驗場景
障礙體驗設施旨在讓學生體會障礙,并思考怎樣為消除障礙而努力,加深學生對無障礙包容性環境建設重要性的理解。在培育學生康復健康相關專業知識的同時,充分展現康復大學立德樹人的教育理念,成為康復大學包容性環境設計的亮點。
4.5 多感官療愈場景
康復大學校園包容性設計中注重人的心理感受,充分發揮康復學科的特點,利用康復醫學、康復景觀學等相關理論,借助場地、空間與陽光、空氣、植物、土地的相互作用,采用園藝療法等療愈手段,利用植物栽培與園藝操作活動幫助有需要人士從其社會、教育、心理以及身體諸方面進行調整更新(圖 20)。

![]()
圖20 康復大學景觀療愈場景
5 結 語
包容性校園表面看是校園環境從特定人群的無障礙支持向全人群的通用化優化的轉變產物,其背后實際是對現代教育從象牙塔向普羅大眾回歸的現實需要,平等共享教育環境是對服務社會教育理念的真誠表達,因而具有了實實在在的必要性與合理性。
但包容性環境建設是一項長期的系統性工作,隨著校園環境的不斷變化和人群的不斷更新,面臨的需求也會不斷變化和升級,因此僅靠建筑師、建設者的自覺是不夠的,應在設計流程組織、建造過程的監督、使用運維的反饋等環境建設使用的全過程,引入公眾參與的新模式,以多元包容的思想,引領設計創新、技術創新和服務創新,方可達成包容友好的目標。因此,包容性校園的建設本身也將是一個由共創達成共享的過程。
參考文獻
[1] 凌亢,李澤慧,孫友然,等 . 殘疾人藍皮書 : 中國殘疾人事業發展報告 (2020) [M]. 北京 : 社會科學文獻出版社,2020.
[2] 關少化 . 我國大學學科建設的發展趨勢 [J]. 江蘇高教,2011(5):36-38.
[3] 呂小泉,呂天天 . 國家無障礙戰略研究與應用叢書(第一輯)無障礙與現代奧運 [M]. 沈陽 : 遼寧人民出版社, 2019.
[4] 邵磊 . 國家無障礙戰略研究與應用叢書(第一輯)無障礙與校園環境 [M]. 沈陽 : 遼寧人民出版社,2019.
王 寧(教授級高工,清華大學建筑設計研究院有限公司)
黃獻明(教授級高工,清華大學建筑設計研究院有限公司)
通信作者:黃獻明;Email: huangxianming@thad.com.cn。